---
title: "Hvad er en plantegning?"
date: "2024-12-16"
created: "2023-05-11"
---

# Hvad er en plantegning?

[Hjem](https://www.bronderslev.dk/)

                    [Borger](https://www.bronderslev.dk/borger)

                    [Flyt, byg og bolig](https://www.bronderslev.dk/borger/flyt-byg-og-bolig)

                [Hvad er en plantegning?](https://www.bronderslev.dk/borger/flyt-byg-og-bolig/hvad-er-en-plantegning)

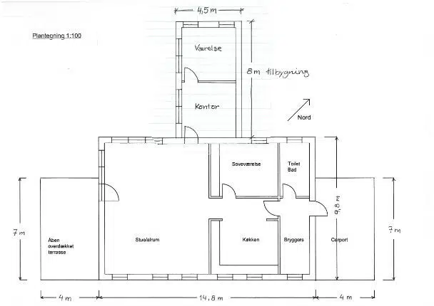
Bygningens grundrids

![Eksempel på plantegning](https://www.bronderslev.dk/i/MOLIRIMEDIA/e70d2d95-eef9-4ed6-feac-08dabcc36d29?width=800)

En plantegning er grundridset af den bygning eller tilbygning du vil bygge. Plantegningen til et enfamiliehus, en tilbygning til et enfamiliehus, en udestue, garage eller anden småbygning kan fint laves som en stregtegning på et ternet A4 eller som en tilføjelse på en ældre tegning af huset. Du behøver ikke professionelle bygningstegninger - bare tegningerne er klare og tydelige og tegnet med lineal.

På tegningen skal du huske at:

- skrive udvendige hovedmål. Dvs. længde og bredde på bygningen/tilbygningen.
- skrive hvad det enkelte rum skal bruges til f.eks. værelse eller køkken.

                https://www.bronderslev.dk/borger/flyt-byg-og-bolig/hvad-er-en-facadetegning

                https://www.bronderslev.dk/borger/flyt-byg-og-bolig/hvad-er-en-situationsplan

## Kontakt

Kontakt os

**Plan og Byg - Byggesag**

Rådhusgade 5
9330 Dronninglund

**Tlf.: 9945 4685**
Mail: raadhus@99454545.dk

Skriv sikkert, hvis du deler følsomme
eller fortrolige oplysninger.

[Skriv sikkert til os](https://post.borger.dk/send/462fee5f-04a1-4c6b-b68e-363dc76584df/c7ee71f1-3966-4d9a-b657-aa2e08213c98/ "Skriv sikkert til os") (MitID)
[Skriv sikkert til os](https://virk.dk/digitalpost/new/462fee5f-04a1-4c6b-b68e-363dc76584df/c7ee71f1-3966-4d9a-b657-aa2e08213c98/ "Skriv sikkert til os") (Erhverv)

[Lukkedage i administrationen](https://admin.moliri.dk/MOLIRIPAGE/645bdf99-f6ff-402b-b5d0-726443450fa6 "Lukkedage i administrationen")

**Telefontider:**Mandag - torsdag 10.00 - 12.00

**Postadresse:**Brønderslev Kommune
Ny Rådhusplads 1
9700 Brønderslev

[Kan vi gøre siden bedre?](https://www.bronderslev.dk/MOLIRIPAGE/a72ffc35-5318-474c-9192-4406b51655e2)
